Doppelhaushälfte kaufen in Dortmund mit großem Grundstück und Entwicklungspotenzial – Klein, aber mein!
Dortmund Brackel
279.000 €provisionsfrei für Käufer
Grundlagen
- Standort: 44309 Dortmund
- Haustyp: Doppelhaushälfte
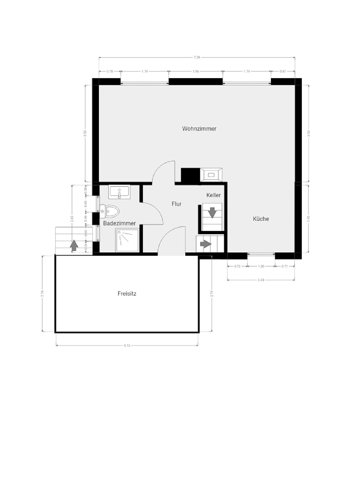
- Wohnfläche, m²: 73
- Grundstücksfläche, m²: 577
- Nutzfläche, m²: 40
- Etagenanzahl: 2
- Zimmer insgesamt: 3
- Schlafzimmer: 2
- Badezimmer: 1
- Keller: Ja
- Objektzustand: Gepflegt
- Bauphase: Haus fertig gestellt
- Baujahr: 1938
- Qualität der Ausstattung: Normal
- Letzte Modernisierung / Sanierung: 2023
- Energieausweistyp: Bedarfsausweis
- Heizungsart: Zentralheizung
- Wesentliche Energieträger: Gas
- Endenergiebedarf: 315,80 kWh/(m²*a)
- Energieeffizienzklasse: H
- Baujahr laut Energieausweis: 1938
- Bezugsfrei ab: 01.05.2026
- Garage / Stellplatz: 1 Garage
Beschreibung
-
Beschreibung:
Grundrisse
- Grundrisse:
Powered by Estatik


